Réf. : 6656509  Belle villa avec piscine, jacuzzi et sauna à 6534 Gozée
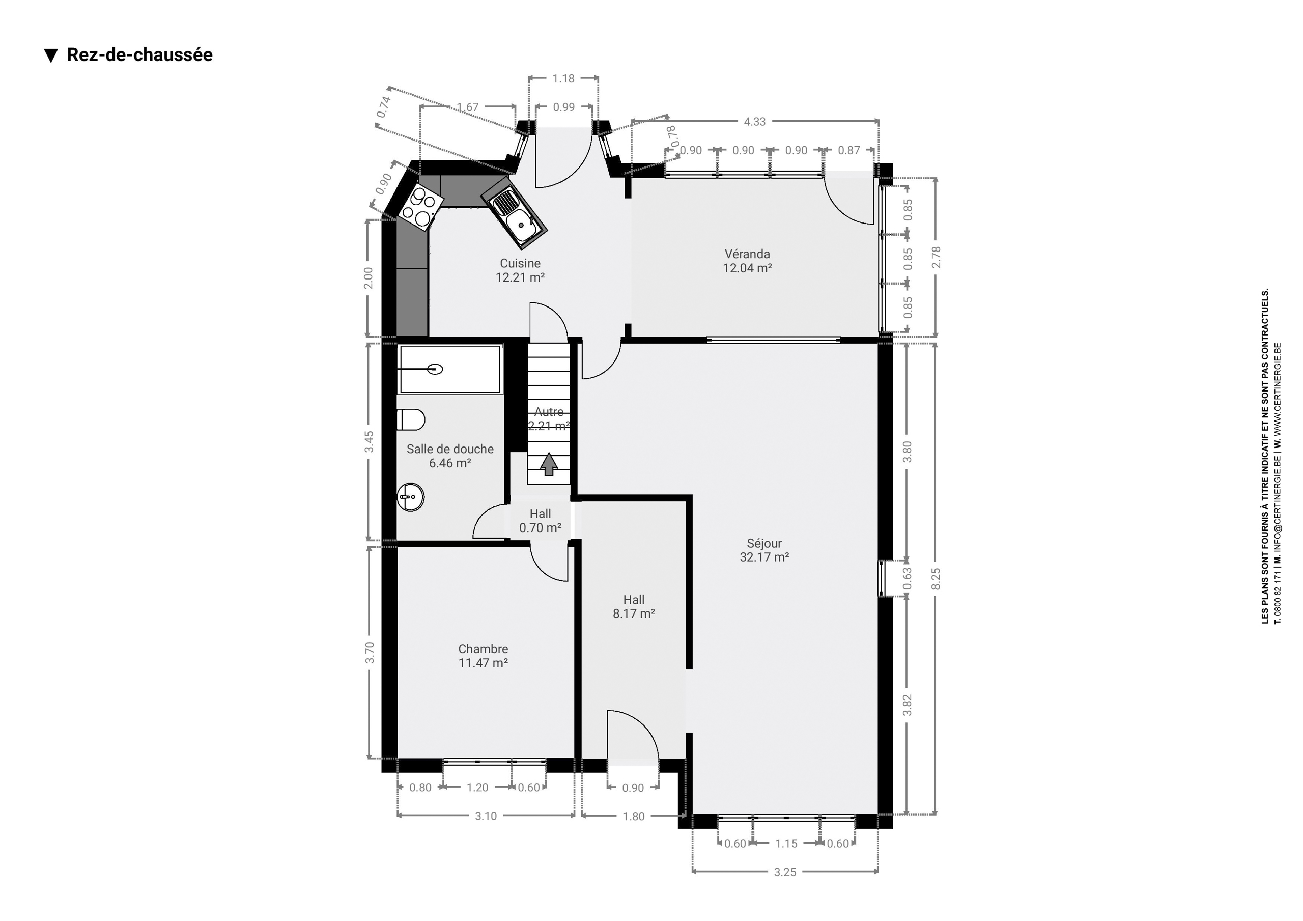
GOZEE : Belle villa située au calme, dans une impasse, à proximité de toutes infrastructures et commodités. Villa en parfait état, bien équipée et arborée, entièrement clôturée (portail électrique), sur 8a91, vaste parking en devanture, ±176m² habitables comprenant diverses caves, buanderie, garage ±20m², hall d'entrée ±8m², living ±32m², cuisine équipée avec coin à manger ±24m², hall de nuit, chambre avec placards ±11m², salle de douches, grande chambre supplémentaire à l'étage ±35m² avec bureau ±13m², terrasse avec pergolas bioclimatique, petit étang, beau jardin avec robot tondeuse, jacuzzi, piscine chauffée (pompe à chaleur), douche extérieur, abri de jardin avec sauna, chauffage central mazout, châssis double vitrage, panneaux photovoltaïques, citerne eau de pluie avec groupe hydrophore, adoucisseur d'eau, compteur électrique bi-horaire, PEB : E (395 kwh/m².an, 47441 kwh/an, n°20250319027022), 399.000 €, pour tout renseignement et demande de visite : 071/303.733 - 0477/310.938
Photos
Aspects Financiers et légaux
Désolé, ce bien n'est plus disponible
Description extérieure
Nombre de façades : 4
Surface du terrain : 891 m²
Terrasse
Jardin
Parking extérieur
Nombre de place de parking : 5
Certificats et attestations
PEB spécifique : 395.00 kWh/m².an
PEB total : 47441 kWh/an
Validité certificat : 03/2035
Numéro du certificat : 20250319027022
Facilités
Raccordements : égout électricité eau
Profession libérale possible
Piscine
Volets
Véranda
Description intérieure
Surface habitable : 176.00 m²
Séjour : 32.00 m²
Cuisine : 24.00 m²
Chambre 1 : 35.00 m²
Chambre 2 : 11.00 m²
1 salle(s) de bains
1 salle(s) de douches
Bureau
Bureau : 13.00 m²
Buanderie
Cave
Grenier
Parking 5 voiture(s)
 
---------- Document informatif et non contractuel ----------



Imprimer

Contacter l'agence